ACG – systemes antifouling et anticorrosion

Dès sa création en 1947, ACG a été un pionnier de l’électrochloration et est devenu l’un des principaux fournisseurs mondiaux de solutions pour la protection des circuits eau de mer et des structures marines.

Pour lutter à la fois contre la prolifération des organismes marins et la corrosion, Azienda Chimica Genovese dispose aujourd’hui de quatre technologies complémentaires à très faibles impacts environnementaux :

Electrochloration   –   Ions Cuivre/Alu/Fe   –   Systèmes Ultrasons   –   Courants Imposés

Voir le commettant

1. ELECTROCHLORATION : le système ELCOCELL

L’électrochloration, dont ACG a été un précurseur dès sa création en 1947, consiste à transformer le chlorure de sodium contenu dans l’eau salée en hypochlorite de sodium, un “équivalent chlore” biocide et désinfectant très efficace.

Le système ECOLCELL combat et élimine à la fois les micros et les macros organismes marins dans les circuits eau de mer des navires, des plateformes, des centrales électriques ou encore des unités de désalinisation en mer ou à terre.

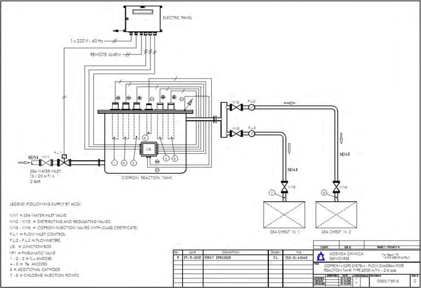
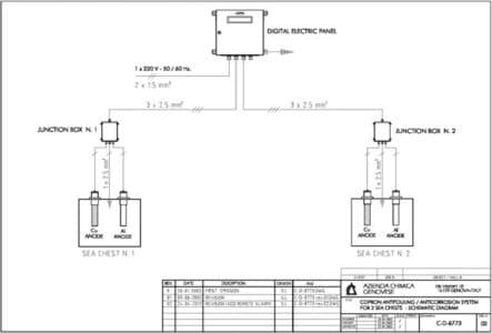
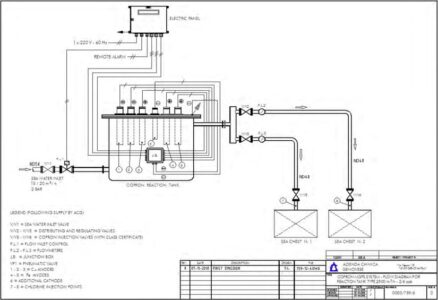
2. IONS CUIVRE/ALU/FE : système antifouling et anticorrosion COPRON

COPRON est un système antifouling de lutte contre les macros organismes (moules…) par diffusion d’une très faible quantité d’ions cuivre produits par ionisation d’anodes de cuivre.

Le système COPRON associe ces anodes de cuivre à une ou plusieurs anodes en aluminium ou anodes en acier fer/inox pour contrôler également la corrosion des tuyaux.

Il est important de souligner que l’utilisation du cuivre comme biocide est soumise à un contrôle international depuis plusieurs années, en tant que polluant marin potentiel, et que son utilisation dans les eaux de l’Union européenne est régie par l’ECHA, qui autorise quelques entreprises à vendre ce type de système. ACG est répertorié dans L’Art. 95 des fournisseurs autorisés à commercialiser des biocides conformément au Règlement (UE) n°528/2012.

 

3. ULTRASONS : système ECOL-ULTRASONIC

De nouvelles méthodes à moindre coût – moins de consommation d’énergie, une utilisation minimale de produits chimiques et un impact sur l’environnement réduit – sont constamment exigées.

Pour répondre à cette demande, ACG a développé ECOL-ULTRASONIC. Ce système par ultrasons permet de lutter très efficacement contre les micros et macros organismes avec une technologie propre et économique.

Les transducteurs disposés sur le circuit eau de mer créent une cavitation acoustique qui va s’attaquer au biofilm qui se dépose sur les parois des tuyaux et le détacher tout en empêchant qu’il se reforme.

4. COURANT IMPOSE : le dispositif MARIMPRESS

MARIMPRESS est un système de protection cathodique par courant imposé (ICCP). Il est utilisé pour protéger contre la corrosion les coques des navires, les docks flottants, les plates-formes pétrolières, les éoliennes, les hydroliennes et toutes les structures en acier immergé.

Le système fonctionne en mesurant continuellement le potentiel de la surface en acier submergée à l’aide d’électrodes de référence en zinc montées sur la coque (type encastré).

Si ce potentiel commence à s’élever au-dessus de la valeur préfixée (220 mV pour les coques en acier : à des potentiels plus élevés, la corrosion se produira), le rectifieur fournit la quantité correcte de courant continu nécessaire pour maintenir la valeur préfixée aux anodes de titane activées montées sur la coque (type encastré). De cette façon, non seulement la coque, mais lorsqu’il sont aussi mis à la masse le gouvernail, l’hélice, l’arbre et les ailerons stabilisateurs sont complètement protégés contre la corrosion.

Le système ajuste automatiquement le courant de sortie pour faire face aux changements des conditions d’eau de mer, de la vitesse des navires ou de l’état de la peinture, tout ce qui peut affecter le taux de corrosion.

Pour les structures offshore, le système intelligent MARIMPRESS WT (ICCP) peut réguler et être contrôlé à distance depuis la salle de contrôle ou la terre grâce à son propre logiciel sur-mesure. La conception de MARIMPRESS WT (ICCP) est basée sur des normes internationales telles que : DNV, Germanischer Lloyd et les spécifications NACE.